Padova 28/12/2025
- Prezzo
- 68.000 €
- Contratto:
- Vendita
- Classe energetica:
- F
- IPE:
- 294.57
Descrizione
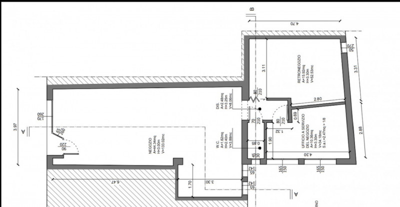
Stanga. Negozio - Ufficio completamente Ristrutturato. Acquisto senza iva, piano terra, di mq 80. Zona in sviluppo per tram, nuova questura, nuovo ospedale, sviluppi residenziali. Immobile privo di arredi. - 1 vano ampio con vetrina - 2 vani interni - 1 Bagno con boiler elettrico per acqua calda - aria condizionata aria fredda e calda - impianto elettrico a norma - cablato Certificato Energetico Classe F - 294,57 Kwh. Rendita Catastale: Euro 1.896,12 --- annuncio pubblicato con GESTIONALEIMMOBILIARE.it
- Collina: No
- Impianto illuminazione: No
- Impianto elettrico: A norma
- Latitudine: 45.40875
- Pannelli fotovoltaici: No
- Aria condizionata: Sì
- Camino: No
- Numero vetrine: 0
- Impianto anti incendio: No
- Categoria immobile: Negozio
- Impianto geotermico: No
- Terrazzi: 0
- Aree esterne: No
- Contratto: Vendita
- Lavanderia: No
- Cantina: No
- Età immobile: 1950
- Taverna: No
- Terme: No
- Camere: 3
- Riscaldamento centralizzato: No
- Banchine di carico: 0
- Lago: No
- Piano terra: Sì
- Numero portoni: 0
- Asta: No
- Nuovo: No
- Predisposizione aria condizionata: No
- Soffitta: No
- Stato manutenzione: Ristrutturato
- Arredo: No
- Carro ponte: No
- Grezzo: No
- Allacciamento fognatura: No
- Giardino condominiale: No
- Numero locali: 3
- UM IPE: kWh/m3anno
- Piscina: No
- Montagna: No
- Poggioli: 0
- Longitudine: 11.90173
- Panorama: Vista aperta
- Connettività: Fibra
- Ribalte: No
- Piano semi interrato: No
- Primo piano: No
- Piano numero: 0
- Soggiorno: No
- Mare: No
- Garage doppio: No
- Posizione: Sconosciuto
- Rif. agenzia: STANGA
- Mansarda: No
- Ultimo piano: No
- Piano intermedio: No
- Riscaldamento autonomo: No
- Ripostigli: 0
- Pannelli solari: No
- Predisposizione allarme: No
- Totale piani: 1
- Saracinesche: 0
- Piano interrato: No
- Riscaldamento a pavimento: No
- Canna fumaria: No
- Cucina: No
- Vendita: Sì
- Numero accessi carrai: 0
- Ingresso indipendente: No
- Zona: Stanga
- Ascensore: No
- Giardino: No
- Classe energetica: F
- Allarme: No
- Bagni: 0
- Soggiorno con angolo cottura: No
- Garage: No
- Posto auto: No
- Affitto: No
- Cabina elettrica: No
- APE: ape2015 (classe: F, epglNRen: 294.57, unità kWh: kWh/m3anno)
- Urbanizzato: No
- Piano rialzato: No
- Montacarichi: 0
- Campagna: No
- Immobile di prestigio: No
- IPE: 294.57
